Professional provider of Biomass Pellet Production Lines and Biomass Pellet Machines, global service
🇫🇷 French Biomass Pellet Production Line Project Case

Rongda Machinery professionally provides French customers with 1T/hour biomass pellet production line solutions. Projects launched in 2023, specifically designed for wood pellet production using wood waste, wood chips, and other biomass materials. Our equipment uses advanced processes to ensure pellet quality and improve efficiency.
Project Basic Information
| Country | Date | Production Line Type | Capacity | Area |
|---|---|---|---|---|
| France | 2023.9.21 | Wood Pellet Production Line | 1T/hour, 12-16T/hour | 13m×5m×6m, Other: Custom |
Raw Materials: Wood, waste wood boards, wood chips
Application: Industrial boilers, biomass power plants, wood processing, household stoves
Key Configuration: Includes packaging system, no boiler system; requires ≥1100kVA transformer; custom solution
Sub-case: 12-16T/hour Pellet Production Line
Customer Type: French local pellet plant
Construction Nature: New project
Scale: Annual capacity of 30,000 tons
Staffing: 2 installation personnel, 3-4 production line operators
Installation Information: Installation period of 30 days, includes large-diameter dust collection bag and dust collection hopper
Core Equipment List
| Equipment Name | Model | Capacity (T/Hour) | Power Consumption (kW) |
|---|---|---|---|
Biomass Pellet Machine | RD508MX | 1.5-2 | 110 |
Wide Chamber Crusher | SFSP 66×80 | 3-4 | 110 |
Pre-cleaning Equipment | SCY63 | 1-2 | 0.75 |
Rotary Grading Machine | SSHJ.2 | 1 | 18.5 |
Rotary Screen | SFJH130×2 | 1 | 6.0 |
Cooling Machine | SKLN4 | 5-10 | 1.5 |
Packaging Machine, Conveyor System, Electrical Control System, Dust Collection Equipment | - | - | - |
Process Support

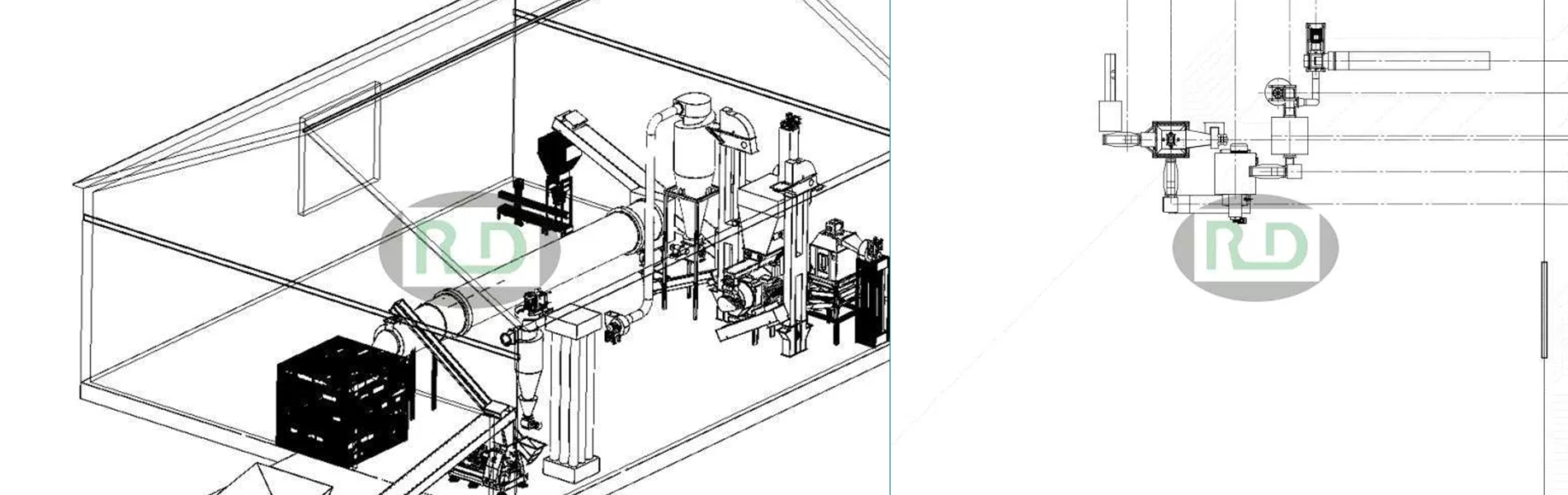
Provides production line design drawings (including flow charts, installation drawings, workshop layout drawings, steel structure drawings and material lists)
Shows the production line process flow chart to ensure visual production process
Key Points for Biomass Pellet Production Line Construction
- Raw material evaluation: Examine raw material quality, price, quantity and long-term supply stability, then plan production line configuration and analyze costs accordingly
- Factory location: Preferably located near raw material sources or convenient transportation areas, with both being optimal
- Energy configuration: Select matching transformer based on capacity and equipment power (pellet industry has high electricity consumption)
- Equipment procurement: It is recommended to prioritize examining equipment manufacturers' product quality; Rongda Machinery can provide equipment installation and commissioning guidance
Service and After-sales Guarantee

Pre-sales Service
- Provide complete technical documents: Flow charts, installation drawings, operation manuals, steel structure drawings and material lists
- Support "Get Solution and Quote" requirement coordination
Installation and Training
- Dispatch 2 technical installation engineers for on-site installation and commissioning guidance
- After completion, provide operation training, equipment maintenance training for customer staff, and develop exclusive maintenance rules (including maintenance methods, timing, and responsible personnel)
After-sales Guarantee
- Regular follow-up: After-sales department regularly calls to understand equipment maintenance status and provide suggestions
- Warranty policy: Excluding consumable parts, provide 1-year free warranty
- Permanent support: Lifetime free technical support








Dust Collection Equipment