🇫🇷 French Wood Pellet Production Line Project Case

Rongda Machinery professionally provides French customers with 1.2-1.5T/hour wood pellet production line solutions. The project was launched on September 20, 2023, specifically designed for wood pellet production using wood chips, wood, and waste wood boards. Our equipment uses advanced processes to ensure pellet quality and improve efficiency.
Project Basic Information
| Country | Date | Production Line Type | Capacity | Area |
|---|---|---|---|---|
| France | 2023.9.20 | Wood Pellet Production Line | 1.2-1.5T/hour | 12m×8m×8m |
Raw Materials: Wood chips, wood, waste wood boards
Application: Industrial boilers, biomass power plants, household stoves, drying ovens
Key Configuration: Includes wood chip packaging system, no boiler system; requires ≥1100kVA transformer; custom solution
Sub-case: 1.2-1.5T/hour Wood Pellet Production Line
Customer Type: A French Nice pellet plant
Construction Nature: New project
Scale: Annual capacity of 4000 tons
Staffing: 3-4 production line operators, 2 installation personnel
Installation Information: Installation period of 35 days
Core Equipment List
| Equipment Name | Model | Capacity (T/Hour) | Power Consumption (kW) |
|---|---|---|---|
Biomass Pellet Machine | RD420MX | 1.2-1.5 | - |
Wood Block Crusher | - | - | - |
Pre-cleaning Equipment | - | - | - |
Vibratory Grading Screen | - | - | - |
Pendulum Cooling Machine | - | - | - |
Packaging Machine, Conveyor System, Electrical Control System, Dust Collection Equipment | - | - | - |
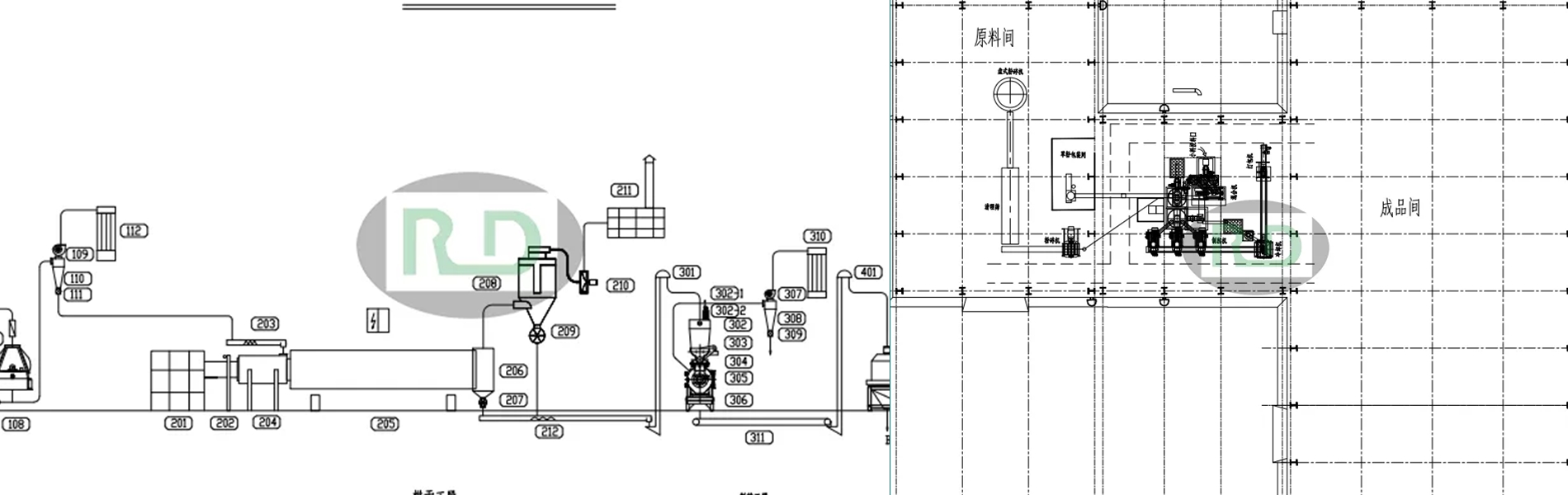
Process Support

Provides production line design drawings (including flow charts, installation drawings, workshop layout drawings, steel structure drawings and material lists)
Shows the production line process flow chart to ensure visual production process
Key Points for Biomass Pellet Production Line Construction
- Raw material evaluation: Examine raw material quality, price, quantity and long-term supply stability, then plan production line configuration and analyze costs accordingly
- Factory location: Preferably located near raw material sources or convenient transportation areas, with both being optimal
- Energy configuration: Select matching transformer based on capacity and equipment power (pellet industry has high electricity consumption)
- Equipment procurement: It is recommended to prioritize examining equipment manufacturers' product quality; Rongda Machinery can provide equipment installation and commissioning guidance
Service and After-sales Guarantee

Pre-sales Service
- Provide complete technical documents: Flow charts, installation drawings, operation manuals, steel structure drawings and material lists
- Support "Get Solution and Quote" requirement coordination
Installation and Training
- Dispatch 2 technical installation engineers for on-site installation and commissioning guidance
- After completion, provide operation training, equipment maintenance training for customer staff, and develop exclusive maintenance rules (including maintenance methods, timing, and responsible personnel)
After-sales Guarantee
- Regular follow-up: After-sales department regularly calls to understand equipment maintenance status and provide suggestions
- Warranty policy: Excluding consumable parts, provide 1-year free warranty
- Permanent support: Lifetime free technical support








Dust Collection Equipment
Popular Products
